Beratung

Persönliche Beratung und Betreuung von der Planung über die Ausführung bis hin zum Einzug.

 

 

Entwurf und Planung

Individuelle Planung von Neu-, Um- und Anbauten von Wohn- und Geschäftsgebäuden in Massiv- und Holzrahmenbauweise. Planung von Gauben, Wintergärten, Garagen und Carports.

 

Erstellung der erforderlichen Bauanträge und Bauanzeigen.

 

Da sowohl die Planung als auch die technischen Nachweise erstellt werden können, fließt bereits in der Planungsphase die statische Vorplanung mit ein. So kann material- und folglich kostengünstig geplant und gebaut werden.

 

 

Visualisierung

Visualisierung im Entwurfsstadium d.h. Besichtigung Ihres Wohnhauses via Bildschirm noch vor Baubeginn.

 

Sie erhalten einen räumlichen Eindruck ihres späteren Hauses und haben eine bessere Vorstellung der jeweiligen Räumlichkeiten.

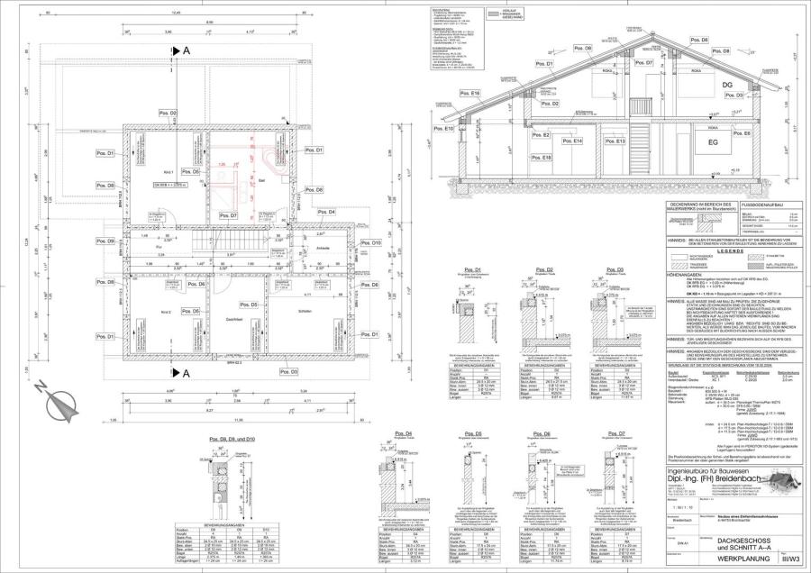
Detailplanung

Erstellung von Werk- und Ausführungsplänen in denen die Grundrisse und Schnitte genauestens gezeichnet und in allen Bereichen vermaßt und alle statischen Details mit den Anforderungen der statsichen Berechnung dargestellt sind.

 

In den Decken- und Bewehrungsplänen sind die Bewehrungslagen und erforderlichen Öffnungen z.B. für Entwässerungsleitungen aufgeführt.

 

Auf Wunsch werden auch Grundrisspläne mit Angabe der erforderlichen und gewünschten Anordnung von Steckdosen, Lichtschaltern, Lampen, etc. erstellt. Dies erfolgt in Abstimmung mit dem Bauherrn, so dass auch nach dem Einzug möglichst keine Wünsche offen bleiben.

 

Die ausführenden Fachfirmen haben durch diese Ausführungspläne alle erforderlichen Angaben für eine korrekte und saubere Bauausführung.





Objektüberwachung und Baubetreuung

Koordination des Bauablauf von Baubeginn bis zur Fertigstellung. Die Arbeiten der beteiligten Fachfirmen werden auf ihre korrekte Ausführung und die Planung hin überwacht und zeitlich abgestimmt. So greifen die Arbeiten ineinander und die Bauzeit wird optimiert. Unnötige Stillstände an der Baustelle werden vermieden.

 

Übernahme der verantwortlichen Bauleitung und Bestätigung Baubeginn, Rohbaufertigstellung und Fertigstellung gegenüber der Baubehörde